安庆E网

搜索
查看: 5656|回复: 0

[城事早知道] 最新发布!项目规划有变

[复制链接]

0

收听

1

听众

1万

帖子

资深E粉

注册时间
2015-10-15
精华
580
发表于 2023-8-18 10:14:22 | 显示全部楼层 |阅读模式
近日
安庆市自然资源和规划局
发布一则公告
安庆市妇幼保健院规划调整
及建设工程设计方案调整
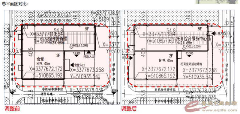
安庆市妇幼保健院建设项目位于潜江路与华中东路交叉口西北角。建设工程设计方案于2022年3月31日审定,用地面积为53200平方米。
640.png
根据国家卫生健康办公厅印发的托育综合服务中心建设指南(试行),2022年5月26日,市卫健委同意市妇幼保健计划生育服务中心利用新建的安庆市妇幼保健院场地承建市托育综合服务中心。依据市发改委关于安庆市托育综合服务中心建设项目可行性研究报告及初步设计的批复,安庆市妇幼保健计划生育服务中心申请对安庆市妇幼保健院建设项目方案进行调整,调整方案于2023年6月20日安庆市自然资源和规划管理委员会 2023年第8次专题会议审议通过,2023年8月9日批准。
640 (1).png
调整内容
保持“综合服务楼、食堂”建筑外轮廓及建筑坐标不变,将建筑功能调整为“托育综合服务中心”。
640 (2).png
为满足托育使用和规范设计要求,优化调整托育综合服务中心1-5层内部平面功能用房:一层原餐厅、食堂调整为托育综合服务中心门厅及生活用房(3个19床托大班、2个14床托小班),原售卖区调整为托育综合服务中心配餐、教师办公室、哺乳室、活动、保健等辅助用房;
640 (3).png
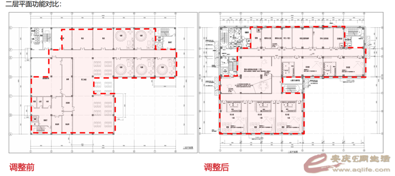
二层原职工厨房、食堂调整为托育综合服务中心的生活用房(5个12床托大班),原包间、售卖区调整为托育综合服务中心教师办公室、听视、牙科、营养测评等辅助用房;
640 (4).png
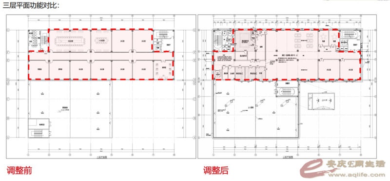
三层原办公室、会议区域调整为托育综合服务中心厨房、食堂、办公等用房;
640 (5).png
四层原北向办公室调整为托育综合服务中心资料室,原南向领导办公室、资料室调整为托育综合服务中心教师办公室、托育指导用房、档案室等用房。
640 (6).png
五层原党员活动室调整为托育综合服务中心活动室等用房。
640 (7).png
根据平面功能及房间分隔的变化,依据防火规范及部分房间采光通风要求对外门窗尺寸做出调整,原批准方案的外饰面材质、颜色、整体造型保持不变;取消裙房屋顶绿化调整为普通的混凝土上人屋面;室外增加700平方米幼儿活动场地和高2米的通透式围墙,原开放式广场铺砖调整为封闭的托育机构塑胶地面,并配置幼儿游戏设施。
640 (8).png
以上调整变化,总建筑面积、计容建筑面积、停车位数量、绿地率等主要经济技术指标不变,托育用房日照符合控规通则要求。

来源:安庆市自然资源和规划局

hulihutuyouhulihulu
回复

使用道具 举报

您需要登录后才可以回帖 登录 | 注册

本版积分规则

联系合作|手机版|手机APP|Archiver|

GMT+8, 2025-12-12 09:22 Powered by Discuz! X3.4

安庆E网生活网站 © 2001-2013 Comsenz Inc. ( 皖ICP备05012696号 )

QQ

安庆瑞易文化 地址:华茂1958-C7栋 联系电话:0556-5306667 联系邮箱:17779721@qq.com 互联网违法和不良信息举报电话和邮箱:0556-5306667 17779721@qq.com

皖公网安备 34080002000101号

    
快速回复 返回顶部 返回列表