安庆E网

搜索
查看: 61287|回复: 297

[装修日记] 家【装修尾期,再次亮相】

  [复制链接]
头像被屏蔽

0

收听

1

听众

218

帖子

禁止访问

注册时间
2008-1-6
精华
0
发表于 2010-5-29 23:04:23 | 显示全部楼层 |阅读模式
提示: 作者被禁止或删除 内容自动屏蔽
回复

使用道具 举报

1

收听

3

听众

2053

帖子

E粉明星

注册时间
2009-12-7
精华
0
QQ
发表于 2010-5-29 23:06:23 | 显示全部楼层
这是那个小区呀,祝楼主开工大吉{:9_492:}
安庆光彩四期二楼D区12幢2号宅本照明
回复 支持 反对

使用道具 举报

头像被屏蔽

0

收听

1

听众

218

帖子

禁止访问

注册时间
2008-1-6
精华
0
 楼主| 发表于 2010-5-29 23:20:20 | 显示全部楼层
提示: 作者被禁止或删除 内容自动屏蔽
回复 支持 反对

使用道具 举报

头像被屏蔽

0

收听

1

听众

521

帖子

禁止访问

注册时间
2010-2-1
精华
0
发表于 2010-5-29 23:21:48 | 显示全部楼层
提示: 作者被禁止或删除 内容自动屏蔽
签名被屏蔽
回复 支持 反对

使用道具 举报

头像被屏蔽

0

收听

1

听众

218

帖子

禁止访问

注册时间
2008-1-6
精华
0
 楼主| 发表于 2010-5-29 23:23:55 | 显示全部楼层
提示: 作者被禁止或删除 内容自动屏蔽
回复 支持 反对

使用道具 举报

头像被屏蔽

0

收听

1

听众

521

帖子

禁止访问

注册时间
2010-2-1
精华
0
发表于 2010-5-29 23:29:08 | 显示全部楼层
提示: 作者被禁止或删除 内容自动屏蔽
签名被屏蔽
回复 支持 反对

使用道具 举报

6

收听

3

听众

2846

帖子

认证商家

注册时间
2008-5-12
精华
1

我的原则是今天的客户,明天的朋友,走自己的路让别人说去吧。

QQ
发表于 2010-5-29 23:39:35 | 显示全部楼层
祝装修一切顺利,开心愉快。每天都有好心情。
美多集成灶地址:南翔光彩博览中心一楼南厅61号  电话:8882250    13905569197
回复 支持 反对

使用道具 举报

1

收听

4

听众

1万

帖子

资深E粉

注册时间
2008-11-26
精华
1

孙老师

QQ
发表于 2010-5-30 04:36:17 | 显示全部楼层
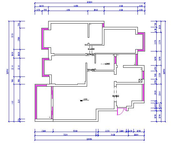
本帖最后由 英俊书生 于 2010-6-2 23:38 编辑

楼主的房型可能是这样的!

原户型

原户型

E网同户型改造图

E网同户型改造图

楼主改造后户型

楼主改造后户型


孙老师:139  5566  0220
回复 支持 反对

使用道具 举报

头像被屏蔽

0

收听

1

听众

1360

帖子

禁止访问

注册时间
2009-4-24
精华
0

笑看装修

发表于 2010-5-30 05:32:12 | 显示全部楼层
提示: 作者被禁止或删除 内容自动屏蔽
签名被屏蔽
回复 支持 反对

使用道具 举报

头像被屏蔽

0

收听

1

听众

195

帖子

禁止访问

注册时间
2008-9-1
精华
0
发表于 2010-5-30 07:55:06 | 显示全部楼层
提示: 作者被禁止或删除 内容自动屏蔽
回复 支持 反对

使用道具 举报

头像被屏蔽

0

收听

1

听众

1360

帖子

禁止访问

注册时间
2009-4-24
精华
0

笑看装修

发表于 2010-5-30 08:00:30 | 显示全部楼层
提示: 作者被禁止或删除 内容自动屏蔽
签名被屏蔽
回复 支持 反对

使用道具 举报

头像被屏蔽

0

收听

1

听众

262

帖子

禁止访问

注册时间
2009-10-8
精华
1
发表于 2010-5-30 08:01:20 | 显示全部楼层
提示: 作者被禁止或删除 内容自动屏蔽
签名被屏蔽
回复 支持 反对

使用道具 举报

3

收听

12

听众

2040

帖子

认证商家

注册时间
2009-5-5
精华
0
发表于 2010-5-30 08:26:42 | 显示全部楼层
祝装修顺利!欢迎参加久盛地板团购!
地址:一店:光彩四期E区13栋56号 服务热线:5309299;二店:光彩博览中心2楼37号电话:5299809
回复 支持 反对

使用道具 举报

0

收听

1

听众

26

帖子

E粉新星

注册时间
2009-10-15
精华
0
发表于 2010-5-30 08:28:53 | 显示全部楼层
是哪家装修公司?
回复 支持 反对

使用道具 举报

头像被屏蔽

0

收听

1

听众

980

帖子

禁止访问

注册时间
2009-4-6
精华
0
发表于 2010-5-30 09:07:12 | 显示全部楼层
提示: 作者被禁止或删除 内容自动屏蔽
回复 支持 反对

使用道具 举报

头像被屏蔽

0

收听

1

听众

27

帖子

禁止访问

注册时间
2010-5-23
精华
0
发表于 2010-5-30 09:44:51 | 显示全部楼层
提示: 作者被禁止或删除 内容自动屏蔽
回复 支持 反对

使用道具 举报

0

收听

1

听众

359

帖子

未认证商家

注册时间
2007-5-30
精华
0

QQ
发表于 2010-5-30 10:14:51 | 显示全部楼层
{:9_492:}{:9_492:}{:9_492:}{:9_492:}
公司地址:安庆市人民路296号(金凤凰大酒店对面)二楼
咨询电话:0556-5558618     18956901313
回复 支持 反对

使用道具 举报

1

收听

1

听众

206

帖子

E粉新星

注册时间
2008-6-10
精华
0
QQ
发表于 2010-5-30 10:25:34 | 显示全部楼层
祝开工大吉,愿我们合作愉快。。。
用眼睛记录生活,用大脑创新生活,用心灵塑造生活!
电话:13966930734
QQ:289181887
回复 支持 反对

使用道具 举报

1

收听

1

听众

1672

帖子

E粉明星

注册时间
2010-4-13
精华
0
QQ
发表于 2010-5-30 10:29:24 | 显示全部楼层
祝LZ装修顺利啊!
顺发石材:迎宾西路349号罗冲大卖场西隔壁(迎宾路与集贤路交叉口处)手机:15209813657   QQ:1248057702
回复 支持 反对

使用道具 举报

0

收听

1

听众

359

帖子

未认证商家

注册时间
2007-5-30
精华
0

QQ
发表于 2010-5-30 10:33:29 | 显示全部楼层
多谢大家支持哈!!!
唯诺装饰一直以客户的满意为服务宗旨,用心把握质量与细节~~
我们定会再接再厉、努力奋斗,一天更比一天好!
公司地址:安庆市人民路296号(金凤凰大酒店对面)二楼
咨询电话:0556-5558618     18956901313
回复 支持 反对

使用道具 举报

头像被屏蔽

0

收听

1

听众

471

帖子

禁止访问

注册时间
2010-1-14
精华
0
发表于 2010-5-30 12:04:09 | 显示全部楼层
提示: 作者被禁止或删除 内容自动屏蔽
签名被屏蔽
回复 支持 反对

使用道具 举报

头像被屏蔽

0

收听

1

听众

33

帖子

禁止访问

注册时间
2010-4-11
精华
0
QQ
发表于 2010-5-30 13:41:51 | 显示全部楼层
提示: 作者被禁止或删除 内容自动屏蔽
回复 支持 反对

使用道具 举报

1

收听

9

听众

5117

帖子

E粉明星

注册时间
2009-11-24
精华
0

室内装饰设计QQ243160571

QQ
发表于 2010-5-30 14:06:29 | 显示全部楼层
王雪华的实力还是可以的哦,不知道LZ的房子是哪个的小区的啊?
东盛装饰  您身边的装修专家!
地址:光彩四期烩街公寓6楼(光彩大舞台隔壁)
电话:13625565176   5200845
回复 支持 反对

使用道具 举报

0

收听

1

听众

3027

帖子

E粉明星

注册时间
2007-9-7
精华
3
QQ
发表于 2010-5-30 17:01:11 | 显示全部楼层
/em48/开工大吉!!!
汽车租赁、抵押借款及二手车买卖咨询
TEL:13956550510     QQ:849077973
回复 支持 反对

使用道具 举报

头像被屏蔽

0

收听

1

听众

922

帖子

禁止访问

注册时间
2009-5-2
精华
0
发表于 2010-5-30 21:12:37 | 显示全部楼层
提示: 作者被禁止或删除 内容自动屏蔽
签名被屏蔽
回复 支持 反对

使用道具 举报

您需要登录后才可以回帖 登录 | 注册

本版积分规则

联系合作|手机版|手机APP|Archiver|

GMT+8, 2025-12-19 22:58 Powered by Discuz! X3.4

安庆E网生活网站 © 2001-2013 Comsenz Inc. ( 皖ICP备05012696号 )

QQ

安庆瑞易文化 地址:华茂1958-C7栋 联系电话:0556-5306667 联系邮箱:17779721@qq.com 互联网违法和不良信息举报电话和邮箱:0556-5306667 17779721@qq.com

皖公网安备 34080002000101号

    
快速回复 返回顶部 返回列表