安庆E网

搜索
查看: 9807|回复: 37

[施工探讨] 预计八月份装修,小房子,问题多,该如何是好啊?

  [复制链接]
头像被屏蔽

0

收听

1

听众

27

帖子

禁止访问

注册时间
2010-5-23
精华
0
发表于 2010-7-12 15:36:50 | 显示全部楼层 |阅读模式
提示: 作者被禁止或删除 内容自动屏蔽
回复

使用道具 举报

0

收听

1

听众

971

帖子

E粉明星

注册时间
2010-3-3
精华
0
QQ
发表于 2010-7-12 17:35:56 | 显示全部楼层
1.感觉客厅光线应该是不错的呀,采光点比较多.
2.一般墙能拆,可以改成12墙也
3.3个卧室,空间应该不错,是不是你贪心了,嘿嘿
4.估计卫生间放洗衣机是放不下了,考虑放阳台上面.
5.不知道哪个是书房~
回复 支持 反对

使用道具 举报

6

收听

3

听众

2846

帖子

认证商家

注册时间
2008-5-12
精华
1

我的原则是今天的客户,明天的朋友,走自己的路让别人说去吧。

QQ
发表于 2010-7-12 18:07:47 | 显示全部楼层
餐厅呢.,不会在卫生间门与卧室门和厨房门的交汇处吧?
美多集成灶地址:南翔光彩博览中心一楼南厅61号  电话:8882250    13905569197
回复 支持 反对

使用道具 举报

头像被屏蔽

0

收听

1

听众

43

帖子

禁止访问

注册时间
2010-6-17
精华
0
发表于 2010-7-12 18:53:04 | 显示全部楼层
提示: 作者被禁止或删除 内容自动屏蔽
签名被屏蔽
回复 支持 反对

使用道具 举报

1

收听

4

听众

1万

帖子

资深E粉

注册时间
2008-11-26
精华
1

孙老师

QQ
发表于 2010-7-12 22:28:15 | 显示全部楼层
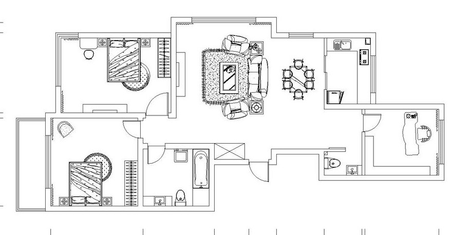
本帖最后由 英俊书生 于 2010-7-12 23:29 编辑

曾经有个人告诉我说:“每件事至少都有三种方法解决!”我相信总会有解决的办法。Sandychen 发表于 2010-7-12 18:53

顶:“每件事至少都有三种方法解决!”
1.jpg
2.jpg

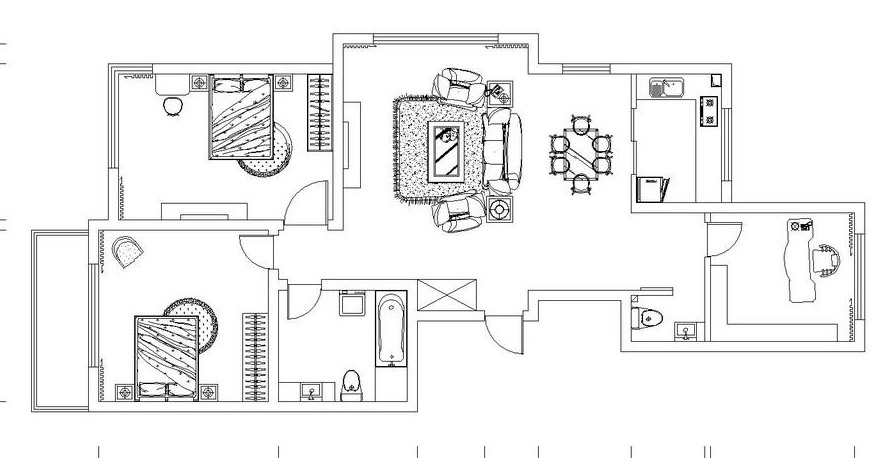
个人认为最好方案

个人认为最好方案
1.jpg
2.jpg
孙老师:139  5566  0220
回复 支持 反对

使用道具 举报

头像被屏蔽

0

收听

1

听众

67

帖子

禁止访问

注册时间
2009-3-27
精华
0
发表于 2010-7-13 10:23:53 | 显示全部楼层
提示: 作者被禁止或删除 内容自动屏蔽
签名被屏蔽
回复 支持 反对

使用道具 举报

头像被屏蔽

0

收听

1

听众

31

帖子

禁止访问

注册时间
2010-6-13
精华
0
QQ
发表于 2010-7-13 12:57:43 | 显示全部楼层
提示: 作者被禁止或删除 内容自动屏蔽
签名被屏蔽
回复 支持 反对

使用道具 举报

1

收听

4

听众

1万

帖子

资深E粉

注册时间
2008-11-26
精华
1

孙老师

QQ
发表于 2010-7-14 21:42:03 | 显示全部楼层
原房型图客厅在中间,有三大问题:
1、客厅门太多;2、光线不好;3、客厅南北不通风!
孙老师:139  5566  0220
回复 支持 反对

使用道具 举报

头像被屏蔽

0

收听

1

听众

27

帖子

禁止访问

注册时间
2010-5-23
精华
0
 楼主| 发表于 2010-7-15 08:30:03 | 显示全部楼层
提示: 作者被禁止或删除 内容自动屏蔽
回复 支持 反对

使用道具 举报

头像被屏蔽

0

收听

1

听众

27

帖子

禁止访问

注册时间
2010-5-23
精华
0
 楼主| 发表于 2010-7-15 08:33:15 | 显示全部楼层
提示: 作者被禁止或删除 内容自动屏蔽
回复 支持 反对

使用道具 举报

头像被屏蔽

0

收听

1

听众

27

帖子

禁止访问

注册时间
2010-5-23
精华
0
 楼主| 发表于 2010-7-15 08:38:57 | 显示全部楼层
提示: 作者被禁止或删除 内容自动屏蔽
回复 支持 反对

使用道具 举报

头像被屏蔽

0

收听

1

听众

331

帖子

禁止访问

注册时间
2010-3-3
精华
0
QQ
发表于 2010-7-15 09:21:04 | 显示全部楼层
提示: 作者被禁止或删除 内容自动屏蔽
签名被屏蔽
回复 支持 反对

使用道具 举报

头像被屏蔽

0

收听

1

听众

74

帖子

禁止访问

注册时间
2010-7-9
精华
0
发表于 2010-7-15 09:39:30 | 显示全部楼层
提示: 作者被禁止或删除 内容自动屏蔽
回复 支持 反对

使用道具 举报

0

收听

5

听众

1574

帖子

未认证商家

注册时间
2007-5-31
精华
0
发表于 2010-7-15 10:50:31 | 显示全部楼层
这跟我们做的康乃特的一种户型很相似。
装修格言:踏踏实实做人 认认真真做事
联系人:   胡广峰   电话: 13063275823    5191201    QQ:534679318
回复 支持 反对

使用道具 举报

头像被屏蔽

0

收听

1

听众

31

帖子

禁止访问

注册时间
2010-6-13
精华
0
QQ
发表于 2010-7-15 11:39:01 | 显示全部楼层
提示: 作者被禁止或删除 内容自动屏蔽
签名被屏蔽
回复 支持 反对

使用道具 举报

头像被屏蔽

0

收听

1

听众

140

帖子

禁止访问

注册时间
2009-10-17
精华
0
发表于 2010-7-15 14:30:20 | 显示全部楼层
提示: 作者被禁止或删除 内容自动屏蔽
签名被屏蔽
回复 支持 反对

使用道具 举报

0

收听

1

听众

102

帖子

E粉新星

注册时间
2010-7-14
精华
0
QQ
发表于 2010-7-15 14:31:16 | 显示全部楼层
{:9_492:}{:9_492:}{:9_488:}{:9_488:}
专业代理工商注册、垫资代帐、年检审计、财税及投资管理顾问!电话:8763678,18755603301
回复 支持 反对

使用道具 举报

0

收听

2

听众

236

帖子

未认证商家

注册时间
2008-11-9
精华
0
QQ
发表于 2010-7-15 15:38:18 | 显示全部楼层
东珍报个名,如果你家有兴趣可以来我们公司咨询
电话:0556-5192480       13696626909
地址:近圣街42号(高琦幼儿园对面)
诚实做人、认真做事!!!相信我们会做得更好!!!
电话:0556-5192480
手机:13696626909
qq:36478946
回复 支持 反对

使用道具 举报

1

收听

4

听众

1万

帖子

资深E粉

注册时间
2008-11-26
精华
1

孙老师

QQ
发表于 2010-7-15 18:55:52 | 显示全部楼层
祝楼主早日找到合适的装修公司

德国威能地暖进驻安庆,体验区:百年家居二期一楼大厅威能展厅,和惠达洁具 ...
wn88 发表于 2010-7-15 16:15
又是一个"洋牌子"!
孙老师:139  5566  0220
回复 支持 反对

使用道具 举报

头像被屏蔽

0

收听

1

听众

471

帖子

禁止访问

注册时间
2010-1-14
精华
0
发表于 2010-7-15 19:28:11 | 显示全部楼层
提示: 作者被禁止或删除 内容自动屏蔽
签名被屏蔽
回复 支持 反对

使用道具 举报

头像被屏蔽

0

收听

1

听众

25

帖子

禁止访问

注册时间
2010-5-26
精华
0
发表于 2010-7-17 15:41:22 | 显示全部楼层
提示: 作者被禁止或删除 内容自动屏蔽
回复 支持 反对

使用道具 举报

2

收听

8

听众

3219

帖子

E粉明星

注册时间
2009-10-21
精华
0
QQ
发表于 2010-7-17 16:11:48 | 显示全部楼层
爱家报个名先,如果LZ有意向,可以来我们公司谈谈!!
QQ:861310949
TEL:5526533
低 调 奢 华,品 味 生 活
爱家装饰地址:吾悦广场B-1801-1802室
爱家装饰电话: 15856537787微信
回复 支持 反对

使用道具 举报

0

收听

1

听众

213

帖子

E粉新星

注册时间
2010-6-10
精华
0
发表于 2010-7-17 19:58:32 | 显示全部楼层
风田环保灶--------唯一带自动清洗功能的环保灶。欢迎你的光临!!{:9_492:}
风田环保灶安庆营销中心
地址:安庆光彩天柱山路二期2区5栋11号(7路公交车总站对面)
电话:5171678   5171679 13866633322
回复 支持 反对

使用道具 举报

头像被屏蔽

0

收听

1

听众

15

帖子

禁止访问

注册时间
2010-6-26
精华
0
发表于 2010-7-18 09:58:20 | 显示全部楼层
提示: 作者被禁止或删除 内容自动屏蔽
回复 支持 反对

使用道具 举报

头像被屏蔽

0

收听

1

听众

27

帖子

禁止访问

注册时间
2010-5-23
精华
0
 楼主| 发表于 2010-7-19 09:14:23 | 显示全部楼层
提示: 作者被禁止或删除 内容自动屏蔽
回复 支持 反对

使用道具 举报

您需要登录后才可以回帖 登录 | 注册

本版积分规则

联系合作|手机版|手机APP|Archiver|

GMT+8, 2025-12-20 00:53 Powered by Discuz! X3.4

安庆E网生活网站 © 2001-2013 Comsenz Inc. ( 皖ICP备05012696号 )

QQ

安庆瑞易文化 地址:华茂1958-C7栋 联系电话:0556-5306667 联系邮箱:17779721@qq.com 互联网违法和不良信息举报电话和邮箱:0556-5306667 17779721@qq.com

皖公网安备 34080002000101号

    
快速回复 返回顶部 返回列表