安庆E网

搜索
查看: 168875|回复: 1047

[装修日记] 人民新村的旧房改造终于上毕业照了,真是不好意思。。

  [复制链接]

0

收听

1

听众

911

帖子

E粉明星

注册时间
2010-8-27
精华
0
发表于 2010-9-7 12:02:33 | 显示全部楼层 |阅读模式
本帖最后由 牵着灵魂漫步 于 2011-6-4 14:41 编辑

下定决心写日记!
先是看了三福的贴子,对宏达的印象不错,接触以后,正好也是给三福设计的甘霖设计师给我家设计,果然是名不虚传,不但把我想要的全部做了出来,更是比我们自己的想法更实用。在这里,先赞一个!{:9_492:} 就是有一点不好,有离我家有点远,坐公交车都没有直达的~~{:9_497:}
2010年9月12日,在网上查了黄历,是个好日子,正好又是星期天,LG不上班,就定为我们装修开工的黄道吉日了。。{:9_511:}
下面引用一下雪大侠的格式:/em46/
【楼盘名称】:人民新村
【房型】:三室一厅
【建筑面积】:81平米
【交房日期】:我家是旧房改造,交房的时候我还不知道在哪呢。。/em62/
【开工日期】:2010912
【竣工日期】:20101212日(合同日期)
【装修风格】:现代简约+一点点田园
【装潢公司】:宏达装饰
【设师】:冰雨
【施工人员】:暂时还不知道
【监理师】:安庆市超凡家装监理(咨询)服务部的李经理(在这里着重感谢小雪雪,是他的提醒让我豁然开朗,献花一朵,表示谢意{:9_504:} )
嗯。。先把图发给各位前辈看看吧,都提提意见,还有几天可以修改,希望各位前辈、各位大师、各位大侠不吝赐教。。
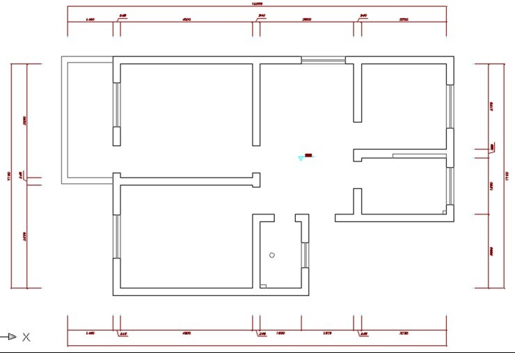
原始图:
2.jpg
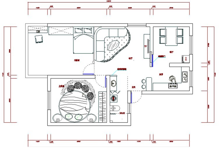
平面图:
1.jpg
效果图:
1111111.jpg

22222222222.jpg
暂时先这么多吧,待续。。。


评分

参与人数 2鲜花 +2 收起 理由
艾依格衣柜 + 1
满堂红装饰 + 1

查看全部评分

回复

使用道具 举报

6

收听

3

听众

2846

帖子

认证商家

注册时间
2008-5-12
精华
1

我的原则是今天的客户,明天的朋友,走自己的路让别人说去吧。

QQ
发表于 2010-9-7 20:02:16 | 显示全部楼层
祝楼主开工大吉,一切顺利。
美多集成灶地址:南翔光彩博览中心一楼南厅61号  电话:8882250    13905569197
回复 支持 反对

使用道具 举报

0

收听

2

听众

2985

帖子

E粉明星

注册时间
2010-5-28
精华
0
发表于 2010-9-7 22:56:36 | 显示全部楼层
       先预祝开工大吉,一切顺利。另外不要用小雪雪这样的词语吧,太女性化了,本大侠是大侠耶,有叫雪雪的大侠吗。

点评

我初中时候有个同学,名字叫欧雪亭,猜猜是男是女?  发表于 2010-11-5 18:44
回复 支持 反对

使用道具 举报

0

收听

1

听众

911

帖子

E粉明星

注册时间
2010-8-27
精华
0
 楼主| 发表于 2010-9-7 23:44:34 | 显示全部楼层
呵呵。。我觉得这样亲切麦。。
回复 支持 反对

使用道具 举报

头像被屏蔽

0

收听

2

听众

69

帖子

禁止访问

注册时间
2009-4-19
精华
0
发表于 2010-9-8 09:16:57 | 显示全部楼层
提示: 作者被禁止或删除 内容自动屏蔽
签名被屏蔽
回复 支持 反对

使用道具 举报

0

收听

1

听众

24

帖子

E粉新星

注册时间
2010-8-25
精华
0
QQ
发表于 2010-9-8 09:30:28 | 显示全部楼层
{:9_492:}{:9_492:}{:9_492:}
回复 支持 反对

使用道具 举报

0

收听

1

听众

911

帖子

E粉明星

注册时间
2010-8-27
精华
0
 楼主| 发表于 2010-9-8 09:32:14 | 显示全部楼层
怎么没人提宝贵意见啊?
回复 支持 反对

使用道具 举报

2

收听

8

听众

3219

帖子

E粉明星

注册时间
2009-10-21
精华
0
QQ
发表于 2010-9-8 10:17:56 | 显示全部楼层
呵呵,恭喜,恭喜!!开工大吉!!{:9_504:}
低 调 奢 华,品 味 生 活
爱家装饰地址:吾悦广场B-1801-1802室
爱家装饰电话: 15856537787微信
回复 支持 反对

使用道具 举报

头像被屏蔽

0

收听

1

听众

980

帖子

禁止访问

注册时间
2009-4-6
精华
0
发表于 2010-9-8 10:43:25 | 显示全部楼层
提示: 作者被禁止或删除 内容自动屏蔽
回复 支持 反对

使用道具 举报

0

收听

1

听众

911

帖子

E粉明星

注册时间
2010-8-27
精华
0
 楼主| 发表于 2010-9-8 11:00:32 | 显示全部楼层
回复 名典磁砖 的帖子


    终于有人提意见了!进门的左手边没地方了,鞋柜是放在右边的,准备买一个。
关于磁砖方面已经定了,谢谢~!
回复 支持 反对

使用道具 举报

0

收听

1

听众

25

帖子

E粉新星

注册时间
2010-8-7
精华
0
QQ
发表于 2010-9-8 11:11:23 | 显示全部楼层
祝LZ开工大吉  {:9_492:}{:9_492:}
光彩2期5区5栋3-5号
服务热线:0556-5180116   5015515   15855558976
经营理念:技术+艺术  敬业+专业  安全+周全   环保+质保
回复 支持 反对

使用道具 举报

头像被屏蔽

0

收听

1

听众

980

帖子

禁止访问

注册时间
2009-4-6
精华
0
发表于 2010-9-8 11:20:48 | 显示全部楼层
提示: 作者被禁止或删除 内容自动屏蔽
回复 支持 反对

使用道具 举报

0

收听

1

听众

911

帖子

E粉明星

注册时间
2010-8-27
精华
0
 楼主| 发表于 2010-9-8 11:33:54 | 显示全部楼层
回复 名典磁砖 的帖子


    哦,沙发边上是设计师没搞好,我也懒的让他再搞了,那里没柜子的,壁纸也只是他随便搞了一个,我准备选很个性的草编的壁纸,类似于下面这样的,正好大家帮我看看怎么样啊?
111.jpg
回复 支持 反对

使用道具 举报

头像被屏蔽

0

收听

1

听众

478

帖子

禁止访问

注册时间
2009-9-16
精华
0
QQ
发表于 2010-9-8 13:24:15 | 显示全部楼层
提示: 作者被禁止或删除 内容自动屏蔽
签名被屏蔽
回复 支持 反对

使用道具 举报

头像被屏蔽

0

收听

2

听众

290

帖子

禁止访问

注册时间
2010-2-7
精华
0
发表于 2010-9-8 13:32:37 | 显示全部楼层
提示: 作者被禁止或删除 内容自动屏蔽
签名被屏蔽
回复 支持 反对

使用道具 举报

头像被屏蔽

0

收听

1

听众

234

帖子

禁止访问

注册时间
2010-4-29
精华
0
发表于 2010-9-8 14:15:37 | 显示全部楼层
提示: 作者被禁止或删除 内容自动屏蔽
签名被屏蔽
回复 支持 反对

使用道具 举报

头像被屏蔽

0

收听

1

听众

234

帖子

禁止访问

注册时间
2010-4-29
精华
0
发表于 2010-9-8 14:15:56 | 显示全部楼层
提示: 作者被禁止或删除 内容自动屏蔽
签名被屏蔽
回复 支持 反对

使用道具 举报

0

收听

1

听众

190

帖子

E粉新星

注册时间
2009-7-27
精华
0
发表于 2010-9-8 15:31:08 | 显示全部楼层
呵呵 很热闹。。。。我们时间差不多啊,可以多交流交流。。。不过我们两家的风格貌似很不一样啊
回复 支持 反对

使用道具 举报

头像被屏蔽

0

收听

1

听众

243

帖子

禁止访问

注册时间
2010-3-3
精华
0
发表于 2010-9-8 15:47:57 | 显示全部楼层
提示: 作者被禁止或删除 内容自动屏蔽
签名被屏蔽
回复 支持 反对

使用道具 举报

0

收听

1

听众

597

帖子

E粉明星

注册时间
2010-5-21
精华
0
QQ
发表于 2010-9-8 17:04:57 | 显示全部楼层
恭祝楼主开工大吉大利!{:9_492:}{:9_492:}



开关选购小常识




名居灯饰广场(1000平米大型展厅)
TEL:5309456,QQ:1434810908
光彩四期C区6栋二楼1-3号[/
回复 支持 反对

使用道具 举报

6

收听

3

听众

2846

帖子

认证商家

注册时间
2008-5-12
精华
1

我的原则是今天的客户,明天的朋友,走自己的路让别人说去吧。

QQ
发表于 2010-9-8 19:27:39 | 显示全部楼层
我就喜欢个性话DD
美多集成灶地址:南翔光彩博览中心一楼南厅61号  电话:8882250    13905569197
回复 支持 反对

使用道具 举报

0

收听

1

听众

213

帖子

E粉新星

注册时间
2010-6-10
精华
0
发表于 2010-9-8 19:59:03 | 显示全部楼层
祝楼主开工大吉。{:9_492:}{:9_492:}
风田环保灶安庆营销中心
地址:安庆光彩天柱山路二期2区5栋11号(7路公交车总站对面)
电话:5171678   5171679 13866633322
回复 支持 反对

使用道具 举报

0

收听

1

听众

911

帖子

E粉明星

注册时间
2010-8-27
精华
0
 楼主| 发表于 2010-9-8 20:13:16 | 显示全部楼层
回复 法狮龙时尚吊顶 的帖子


    我是在人民新村长大的一个男孩的亲爱的,呵呵。。也许你认识他,但肯定不会认识我。。
回复 支持 反对

使用道具 举报

0

收听

1

听众

911

帖子

E粉明星

注册时间
2010-8-27
精华
0
 楼主| 发表于 2010-9-8 20:14:15 | 显示全部楼层
回复 Hgood昊得饰界 的帖子


    你们那里的草编墙纸什么价?

回复 支持 反对

使用道具 举报

0

收听

1

听众

911

帖子

E粉明星

注册时间
2010-8-27
精华
0
 楼主| 发表于 2010-9-8 20:14:48 | 显示全部楼层
回复 丫头zz 的帖子


    不管风格是不是一样的,需要的材料都差不多哦,是要多交流。。
回复 支持 反对

使用道具 举报

您需要登录后才可以回帖 登录 | 注册

本版积分规则

联系合作|手机版|手机APP|Archiver|

GMT+8, 2025-12-10 18:40 Powered by Discuz! X3.4

安庆E网生活网站 © 2001-2013 Comsenz Inc. ( 皖ICP备05012696号 )

QQ

安庆瑞易文化 地址:华茂1958-C7栋 联系电话:0556-5306667 联系邮箱:17779721@qq.com 互联网违法和不良信息举报电话和邮箱:0556-5306667 17779721@qq.com

皖公网安备 34080002000101号

    
快速回复 返回顶部 返回列表