安庆E网

搜索
查看: 11439|回复: 57

[设计交流] 我家的户型图,难!

  [复制链接]

1

收听

4

听众

598

帖子

E粉明星

注册时间
2011-3-25
精华
0
发表于 2013-1-13 16:07:19 | 显示全部楼层 |阅读模式

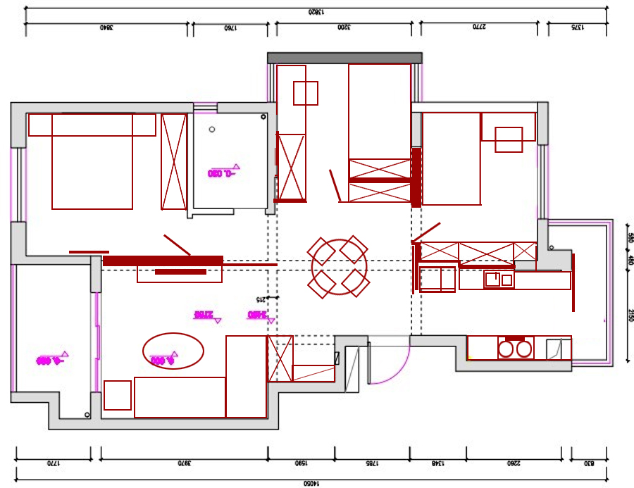
原始户型图

原始户型图
当初买房子时候为了买好的楼,即前面没挡的,风景好,选择了这栋楼的最大面积,也只有107! 有得必有失,在我眼里,这个户型不好!不知道怎么设计好!
回复

使用道具 举报

头像被屏蔽

0

收听

5

听众

401

帖子

未认证商家

注册时间
2013-1-9
精华
1
QQ
发表于 2013-1-13 17:34:30 | 显示全部楼层
提示: 该帖被管理员或版主屏蔽
签名被屏蔽
回复 支持 反对

使用道具 举报

头像被屏蔽

0

收听

2

听众

126

帖子

禁止访问

注册时间
2008-4-9
精华
0
发表于 2013-1-13 21:11:25 | 显示全部楼层
提示: 作者被禁止或删除 内容自动屏蔽
回复 支持 反对

使用道具 举报

1

收听

4

听众

598

帖子

E粉明星

注册时间
2011-3-25
精华
0
 楼主| 发表于 2013-1-14 08:25:47 | 显示全部楼层
adam90 发表于 2013-1-13 21:11
表示设计毫无压力,方案有二
1、两室两厅,南边两个卧室,北边厨房隔壁是饭厅,中间是客厅(横厅),饭厅与 ...

晕死,南边哪里有两个卧室啊!
回复 支持 反对

使用道具 举报

头像被屏蔽

4

收听

3

听众

427

帖子

禁止发言

注册时间
2012-6-4
精华
0
QQ
发表于 2013-1-14 09:48:00 | 显示全部楼层
提示: 作者被禁止或删除 内容自动屏蔽
签名被屏蔽
回复 支持 反对

使用道具 举报

头像被屏蔽

4

收听

3

听众

427

帖子

禁止发言

注册时间
2012-6-4
精华
0
QQ
发表于 2013-1-14 09:49:19 | 显示全部楼层
提示: 作者被禁止或删除 内容自动屏蔽
签名被屏蔽
回复 支持 反对

使用道具 举报

0

收听

2

听众

139

帖子

E粉新星

注册时间
2012-6-23
精华
0
发表于 2013-1-16 13:54:04 | 显示全部楼层
可是余哥的房子啊,方案可搞定了
回复 支持 反对

使用道具 举报

1

收听

4

听众

598

帖子

E粉明星

注册时间
2011-3-25
精华
0
 楼主| 发表于 2013-1-17 09:02:25 | 显示全部楼层
雨莫寒 发表于 2013-1-16 13:54
可是余哥的房子啊,方案可搞定了

?............?
回复 支持 反对

使用道具 举报

0

收听

2

听众

139

帖子

E粉新星

注册时间
2012-6-23
精华
0
发表于 2013-1-17 15:20:15 | 显示全部楼层
aqqxr 发表于 2013-1-17 09:02
?............?

不是余哥啊,这个户型我帮个朋友做过一个方案,要看加我284221211
回复 支持 反对

使用道具 举报

11

收听

6

听众

2246

帖子

认证商家

注册时间
2008-6-9
精华
0
QQ
发表于 2013-1-17 15:29:43 | 显示全部楼层
安庆面对面装饰公司欢迎您咨询~
回复 支持 反对

使用道具 举报

11

收听

6

听众

2246

帖子

认证商家

注册时间
2008-6-9
精华
0
QQ
发表于 2013-1-17 15:48:48 | 显示全部楼层
面对面装饰公司新年签单惠活动正在进行中,欢迎您来咨询~详情请见:http://anqing.jinti.com/zhuangxiu/15257684.htm
回复 支持 反对

使用道具 举报

2

收听

24

听众

1951

帖子

E粉明星

注册时间
2010-8-8
精华
0
发表于 2013-1-29 21:43:02 | 显示全部楼层
a_72605779.jpg
回复 支持 反对

使用道具 举报

1

收听

4

听众

605

帖子

未认证商家

注册时间
2010-8-26
精华
0
QQ
发表于 2013-1-30 09:01:10 | 显示全部楼层
您好,安庆千色花装饰欢迎您的咨询。您可以和我们的设计师交流沟通一下,我们的设计师会为您设计出让您满意的方案!

联系电话:5570733
               13905560433(陈)


公司地址:人民路203—207号(谐水湾二期售楼部旁)

标准工程     一就不同
地址:棋盘山路与沿江路交叉口1-2号门面  
电话:5570733
回复 支持 反对

使用道具 举报

1

收听

4

听众

598

帖子

E粉明星

注册时间
2011-3-25
精华
0
 楼主| 发表于 2013-1-31 14:41:35 | 显示全部楼层
竞叫战士 发表于 2013-1-29 21:43

谢谢你的用心,这个设计中间空了太多,到处都是门,厅里
回复 支持 反对

使用道具 举报

2

收听

24

听众

1951

帖子

E粉明星

注册时间
2010-8-8
精华
0
发表于 2013-2-1 03:19:21 | 显示全部楼层
本帖最后由 竞叫战士 于 2013-2-1 03:21 编辑

餐厅较暗是唯一的弱点。


这套房子设计成小三居适合一家三口,家里来人有地方留宿。

入户餐厅用白色系,突出入户门的对景柜(兼餐边柜),不凸显门(建议用隐形门)。10平米的餐厅放一张1.2M的圆桌,也不算宽松了。


呵呵,这套方案功能齐全、动线通畅,我个人认为可以打90分以上。

回复 支持 反对

使用道具 举报

头像被屏蔽

0

收听

1

听众

15

帖子

禁止访问

注册时间
2012-12-27
精华
0
发表于 2013-2-2 15:23:01 | 显示全部楼层
提示: 作者被禁止或删除 内容自动屏蔽
回复 支持 反对

使用道具 举报

1

收听

3

听众

1557

帖子

E粉明星

注册时间
2005-5-11
精华
1

发表于 2013-2-5 21:30:17 | 显示全部楼层
战士的设计我打95分,5分扣在没有鞋柜和卫生间的布局。呵呵
宠辱不惊,静观堂前花开花落;去留无意,漫看天边云卷云舒。[img]http://attachments.goapk.com/album/2012
回复 支持 反对

使用道具 举报

1

收听

3

听众

1557

帖子

E粉明星

注册时间
2005-5-11
精华
1

发表于 2013-2-5 21:34:51 | 显示全部楼层
厨房也可以在规划一下利用北阳台的空间,餐厅就可以再向北拓展一点,显得不局促
宠辱不惊,静观堂前花开花落;去留无意,漫看天边云卷云舒。[img]http://attachments.goapk.com/album/2012
回复 支持 反对

使用道具 举报

1

收听

4

听众

598

帖子

E粉明星

注册时间
2011-3-25
精华
0
 楼主| 发表于 2013-2-6 08:09:50 | 显示全部楼层
hongzai 发表于 2013-2-5 21:34
厨房也可以在规划一下利用北阳台的空间,餐厅就可以再向北拓展一点,显得不局促

物业不给弄
回复 支持 反对

使用道具 举报

2

收听

3

听众

1068

帖子

E粉明星

注册时间
2004-1-30
精华
10

发表于 2013-2-6 10:31:36 | 显示全部楼层
aqqxr 发表于 2013-2-6 08:09
物业不给弄

缺点是餐厅位置不好确定,有点局促了
回复 支持 反对

使用道具 举报

0

收听

1

听众

416

帖子

E粉明星

注册时间
2011-7-29
精华
0
发表于 2013-2-6 10:55:21 | 显示全部楼层
竞叫的设计,餐桌摆放个人认为不合理。
摆在过道中间,不管你往哪个方向,餐桌都挡路。

点评

这么紧凑的小三居,入户还有大宅的范儿。餐台并没有挡道儿餐台四周都有1M左右留白。  发表于 2013-2-6 17:38
是的 是的  发表于 2013-2-6 14:12
用积极快乐的心态体验美妙的装修历程!
回复 支持 反对

使用道具 举报

2

收听

24

听众

1951

帖子

E粉明星

注册时间
2010-8-8
精华
0
发表于 2013-2-6 17:30:04 | 显示全部楼层
呵呵,餐台不合理?
回复 支持 反对

使用道具 举报

2

收听

24

听众

1951

帖子

E粉明星

注册时间
2010-8-8
精华
0
发表于 2013-2-6 17:32:38 | 显示全部楼层
餐台并没有阻碍动线,真正不合理的是餐桌上面的梁。

巧妙隐藏那道梁且好看,才是定睛之笔。
回复 支持 反对

使用道具 举报

2

收听

24

听众

1951

帖子

E粉明星

注册时间
2010-8-8
精华
0
发表于 2013-2-6 17:33:20 | 显示全部楼层
谢谢各位。
回复 支持 反对

使用道具 举报

2

收听

24

听众

1951

帖子

E粉明星

注册时间
2010-8-8
精华
0
发表于 2013-2-6 17:35:40 | 显示全部楼层
阴台的作用,洗晒拖把抹布,还有腌泡菜、挂腊肉的好地方。
回复 支持 反对

使用道具 举报

您需要登录后才可以回帖 登录 | 注册

本版积分规则

联系合作|手机版|手机APP|Archiver|

GMT+8, 2025-12-10 16:13 Powered by Discuz! X3.4

安庆E网生活网站 © 2001-2013 Comsenz Inc. ( 皖ICP备05012696号 )

QQ

安庆瑞易文化 地址:华茂1958-C7栋 联系电话:0556-5306667 联系邮箱:17779721@qq.com 互联网违法和不良信息举报电话和邮箱:0556-5306667 17779721@qq.com

皖公网安备 34080002000101号

    
快速回复 返回顶部 返回列表