安庆E网

搜索
楼主: aqqxr

[设计交流] 我家的户型图,难!

  [复制链接]

2

收听

24

听众

1951

帖子

E粉明星

注册时间
2010-8-8
精华
0
发表于 2013-2-6 17:36:03 | 显示全部楼层
门外面不是鞋柜?
回复 支持 反对

使用道具 举报

头像被屏蔽

0

收听

1

听众

109

帖子

禁止访问

注册时间
2009-12-5
精华
0
发表于 2013-2-8 09:13:29 | 显示全部楼层
提示: 作者被禁止或删除 内容自动屏蔽
回复 支持 反对

使用道具 举报

5

收听

8

听众

534

帖子

未认证商家

注册时间
2012-9-16
精华
0
QQ
发表于 2013-2-8 19:52:28 | 显示全部楼层
有时间的话可以到我们公司来看下。相信一定能给您满意的设计。
北京百度家装安庆分公司
地址:安庆市湖心北路19号
咨询热线: 15855657537
QQ:361470412
回复 支持 反对

使用道具 举报

2

收听

24

听众

1951

帖子

E粉明星

注册时间
2010-8-8
精华
0
发表于 2013-2-9 08:18:50 | 显示全部楼层
bicikaixing 发表于 2013-2-8 09:13
图画的一般,姑且看看,多提意见哈

如果一定要把阳台做卧室,也有较好的几套:
1、
1.jpg
2、
2.jpg


回复 支持 反对

使用道具 举报

2

收听

24

听众

1951

帖子

E粉明星

注册时间
2010-8-8
精华
0
发表于 2013-2-9 08:22:40 | 显示全部楼层
综合考虑,还是这套方案最好。


回复 支持 反对

使用道具 举报

1

收听

4

听众

598

帖子

E粉明星

注册时间
2011-3-25
精华
0
 楼主| 发表于 2013-2-13 16:56:42 | 显示全部楼层
竞叫战士 发表于 2013-2-9 08:22
综合考虑,还是这套方案最好。

谢谢您的用心啊! 这样子的话,北边房子太小了!所有的房间都好小,包括厅里电视墙!
回复 支持 反对

使用道具 举报

2

收听

24

听众

1951

帖子

E粉明星

注册时间
2010-8-8
精华
0
发表于 2013-2-16 12:24:48 | 显示全部楼层
本帖最后由 竞叫战士 于 2013-2-16 14:29 编辑

动区要宽敞,静区适合就行。

睡觉的地方,大多数是闭着眼睛的。皇宫博大,皇帝的睡眠区也就10来个平方,安全聚气。


一般家庭沙发前是财堂,做学问的大书台前也是明堂……

还有你所需要的客厅,财位双破。房子是你的,你做主就行了,何必上网咨询,左右你的“非主流”?



祝你好运!

点评

可以!  发表于 2013-3-4 23:47
你的方案很好  发表于 2013-2-20 19:59
回复 支持 反对

使用道具 举报

1

收听

4

听众

598

帖子

E粉明星

注册时间
2011-3-25
精华
0
 楼主| 发表于 2013-2-16 16:28:10 | 显示全部楼层
竞叫战士 发表于 2013-2-16 12:24
动区要宽敞,静区适合就行。

睡觉的地方,大多数是闭着眼睛的。皇宫博大,皇帝的睡眠区也就10来个平方, ...

你最热心,谢谢你啊!
回复 支持 反对

使用道具 举报

2

收听

24

听众

1951

帖子

E粉明星

注册时间
2010-8-8
精华
0
发表于 2013-2-17 08:06:08 | 显示全部楼层
999.jpg
回复 支持 反对

使用道具 举报

1

收听

4

听众

598

帖子

E粉明星

注册时间
2011-3-25
精华
0
 楼主| 发表于 2013-2-17 08:18:22 | 显示全部楼层
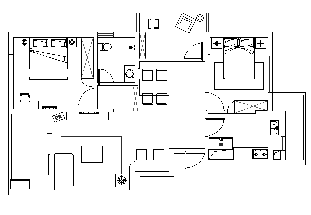
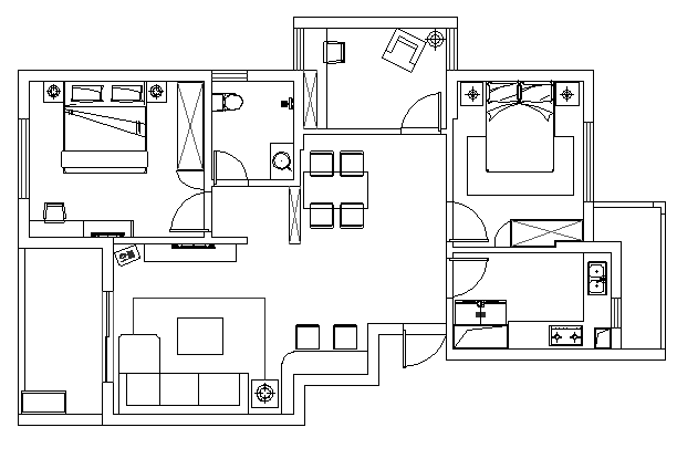
这是我家效果图吗
回复 支持 反对

使用道具 举报

1

收听

4

听众

684

帖子

未认证商家

注册时间
2012-2-12
精华
0
发表于 2013-2-17 12:10:05 | 显示全部楼层
楼主!加油!
锦致橱柜,做最适合中国人的厨房
展厅地址:南翔光彩国际家居博览中心一层61号
品鉴热线:8882250
服务热
回复 支持 反对

使用道具 举报

2

收听

3

听众

356

帖子

E粉新星

注册时间
2012-3-24
精华
0
发表于 2013-2-20 19:57:48 | 显示全部楼层
还是竟叫的方案好!95分
回复 支持 反对

使用道具 举报

0

收听

1

听众

18

帖子

E粉新人

注册时间
2013-2-18
精华
0
QQ
发表于 2013-2-21 09:29:24 | 显示全部楼层
您好,您家房子户型是红旗小区的吧,我们公司有这套户型图的设计方案,如近期有装修计划,欢迎来我公司咨询。

云兰装饰公司
地  址 :浮山路与雷池路的交叉口(双龙大酒店旁)
联系方式:182 2572 7590
Q  Q  :151 555 7113
质量是企业的生命,诚信是立业之根本。
回复 支持 反对

使用道具 举报

1

收听

4

听众

598

帖子

E粉明星

注册时间
2011-3-25
精华
0
 楼主| 发表于 2013-2-21 09:47:13 | 显示全部楼层
风飘絮 发表于 2013-2-21 09:29
您好,您家房子户型是红旗小区的吧,我们公司有这套户型图的设计方案,如近期有装修计划,欢迎来我公司咨询 ...

那就晒晒你们已有的户型图啊
回复 支持 反对

使用道具 举报

0

收听

5

听众

401

帖子

未认证商家

注册时间
2013-1-9
精华
1
QQ
发表于 2013-2-21 12:59:32 | 显示全部楼层
您好,我是广东星艺装饰集团(安庆分公司)的设计师小周,有装修的需要可以跟我聊系,有装修问题可以咨询我!QQ:1115924565
  我们下个月9号在碧桂园凤凰大酒店举行一场“品质生活,爱传万家”的大型回馈客户的优惠活动,我们还邀请了安庆箭牌卫浴.郁金香壁纸等14个高端品牌参与
本次活动必须要凭入场券入场   您想抓住这次 难得的优惠活动您就要尽快联系我把入场劵拿过去    我手里只有3张   由于优惠力度大所以名额相当有限   
设计源于生活,生活是设计出来的!
回复 支持 反对

使用道具 举报

1

收听

4

听众

598

帖子

E粉明星

注册时间
2011-3-25
精华
0
 楼主| 发表于 2013-2-21 15:12:37 | 显示全部楼层
星艺装饰小周 发表于 2013-2-21 12:59
您好,我是广东星艺装饰集团(安庆分公司)的设计师小周,有装修的需要可以跟我聊系,有装修问题可以咨询我 ...

哈哈哈!
我好想票!
回复 支持 反对

使用道具 举报

1

收听

4

听众

598

帖子

E粉明星

注册时间
2011-3-25
精华
0
 楼主| 发表于 2013-2-21 15:14:03 | 显示全部楼层
这位设计师,你也设计一下,把图晒晒啊!
回复 支持 反对

使用道具 举报

0

收听

5

听众

401

帖子

未认证商家

注册时间
2013-1-9
精华
1
QQ
发表于 2013-2-21 16:39:23 | 显示全部楼层
aqqxr 发表于 2013-2-21 15:12
哈哈哈!
我好想票!

您联系下我18255660577   过来我们详细聊下    机会难得   好吧!!!
设计源于生活,生活是设计出来的!
回复 支持 反对

使用道具 举报

0

收听

5

听众

401

帖子

未认证商家

注册时间
2013-1-9
精华
1
QQ
发表于 2013-2-21 16:45:15 | 显示全部楼层
星艺装饰小周 发表于 2013-2-21 16:39
您联系下我18255660577   过来我们详细聊下    机会难得   好吧!!!

这个户型设计我们早就做做好了!!!香水百合的
设计源于生活,生活是设计出来的!
回复 支持 反对

使用道具 举报

0

收听

5

听众

401

帖子

未认证商家

注册时间
2013-1-9
精华
1
QQ
发表于 2013-2-21 16:45:58 | 显示全部楼层
星艺装饰小周 发表于 2013-2-21 16:45
这个户型设计我们早就做做好了!!!香水百合的

跟这户型基本一致
设计源于生活,生活是设计出来的!
回复 支持 反对

使用道具 举报

1

收听

4

听众

598

帖子

E粉明星

注册时间
2011-3-25
精华
0
 楼主| 发表于 2013-2-22 08:29:40 | 显示全部楼层
aqqxr 发表于 2013-2-21 15:12
哈哈哈!
我好想票!

你要像竟叫战士那样热心,不要带着商业色彩!
回复 支持 反对

使用道具 举报

1

收听

4

听众

1万

帖子

资深E粉

注册时间
2008-11-26
精华
1

孙老师

QQ
发表于 2013-2-22 13:18:15 | 显示全部楼层
本帖最后由 英俊书生 于 2013-2-22 13:30 编辑
竞叫战士 发表于 2013-1-29 21:43

还是12楼这个设计是真心的好!瞎子都看的出!家客厅是重中之重!现在都小卧室!
阳台要连着客厅,这样什么人都能去阳台晒东西!
阳台要是连着卧室,晒东西不方便,你懂的!

点评

3Q  发表于 2013-2-22 13:39
孙老师:139  5566  0220
回复 支持 反对

使用道具 举报

0

收听

2

听众

139

帖子

E粉新星

注册时间
2012-6-23
精华
0
发表于 2013-2-27 22:15:27 | 显示全部楼层
英俊书生 发表于 2013-2-22 13:18
还是12楼这个设计是真心的好!瞎子都看的出!家客厅是重中之重!现在都小卧室!
阳台要连着客厅,这样什 ...

1.png
大致布局一下,仅供参考


1.png
回复 支持 反对

使用道具 举报

2

收听

24

听众

1951

帖子

E粉明星

注册时间
2010-8-8
精华
0
发表于 2013-3-4 19:18:14 | 显示全部楼层
你的方案

柜子够用么?
客房虚设?


就是为了放一台西餐台?实际上圆台更适合房主,且比长餐台更好用.
回复 支持 反对

使用道具 举报

2

收听

24

听众

1951

帖子

E粉明星

注册时间
2010-8-8
精华
0
发表于 2013-3-4 19:20:18 | 显示全部楼层
不会解决家庭收纳空间的设计,是拿客户的积蓄开玩笑.
回复 支持 反对

使用道具 举报

您需要登录后才可以回帖 登录 | 注册

本版积分规则

联系合作|手机版|手机APP|Archiver|

GMT+8, 2025-12-10 20:03 Powered by Discuz! X3.4

安庆E网生活网站 © 2001-2013 Comsenz Inc. ( 皖ICP备05012696号 )

QQ

安庆瑞易文化 地址:华茂1958-C7栋 联系电话:0556-5306667 联系邮箱:17779721@qq.com 互联网违法和不良信息举报电话和邮箱:0556-5306667 17779721@qq.com

皖公网安备 34080002000101号

    
快速回复 返回顶部 返回列表