安庆E网

搜索
查看: 11492|回复: 69

[施工探讨] 帮我看看平面设计图哪里需要改的?

  [复制链接]

0

收听

1

听众

160

帖子

E粉新星

注册时间
2010-6-6
精华
0
发表于 2012-3-29 17:43:37 | 显示全部楼层 |阅读模式
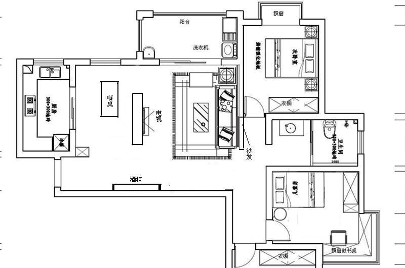
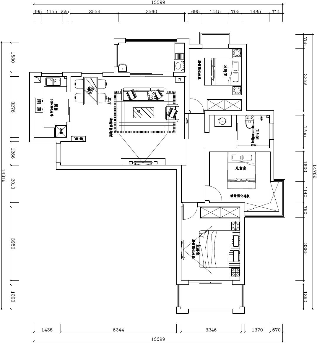
平面设计图.JPG
有哪位高手帮我修改一下,看看有什么好的建议?谢谢!
回复

使用道具 举报

0

收听

1

听众

160

帖子

E粉新星

注册时间
2010-6-6
精华
0
 楼主| 发表于 2012-3-29 17:54:35 | 显示全部楼层
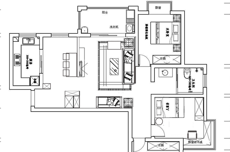
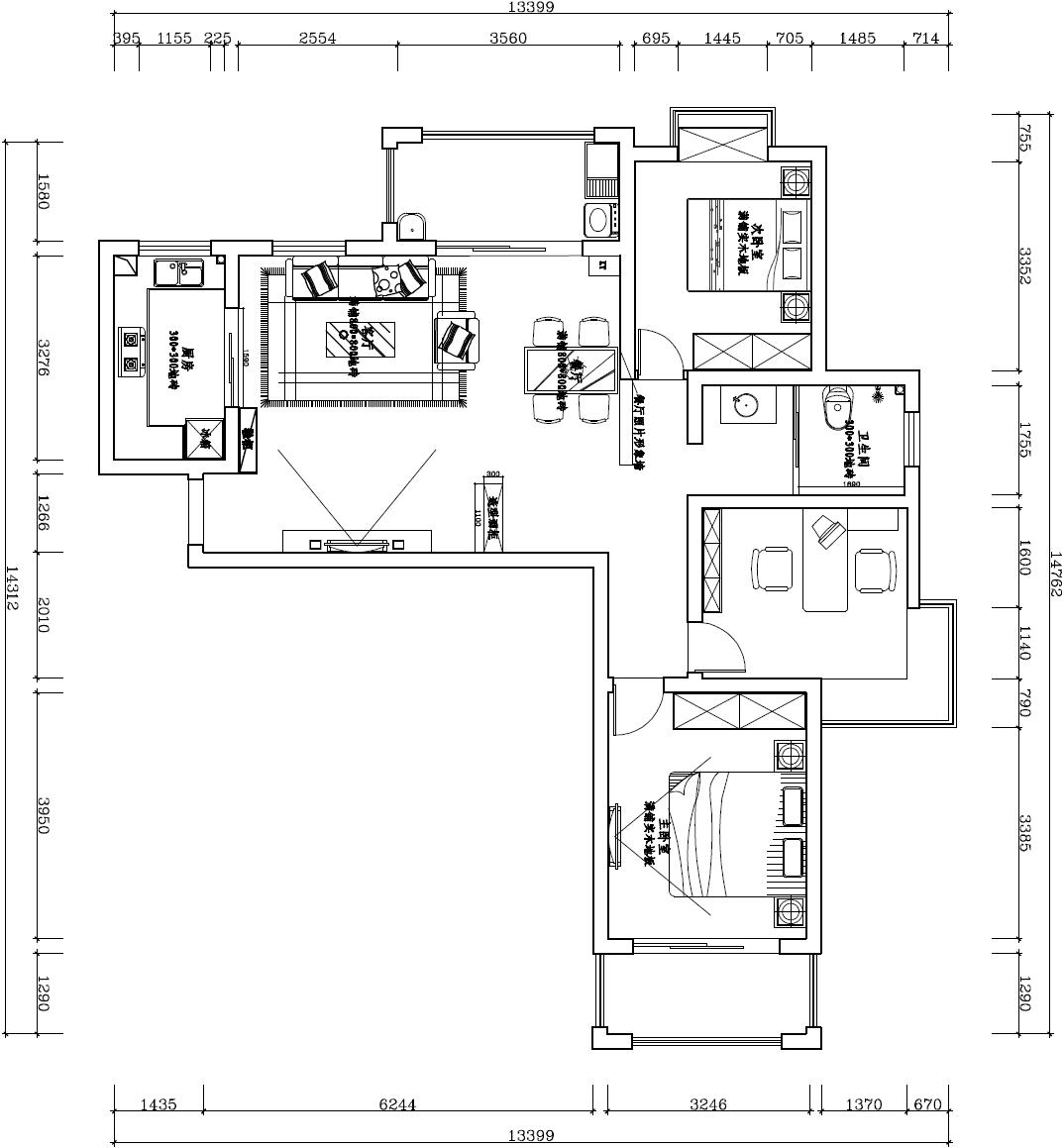
平面设计图2.JPG
这是经过我改的方案,不知道大家看了以后又什么想法?谢谢!
回复 支持 反对

使用道具 举报

9

收听

7

听众

1349

帖子

认证商家

注册时间
2011-11-6
精华
0
发表于 2012-3-29 18:18:16 | 显示全部楼层
厨房我感觉第二种方案合理一些,客厅我个人认为第一种比较好一些,关键是电视墙要处理好,浴柜左边的墙建议砸掉。
展厅地址:光彩国际家居博览中心一层61号
销售热线:8882250
客服热线:8882251
品鉴热线:13905569197   qq:2502490242
做适合中国人的厨房,您的满意是我们最高的荣誉[
回复 支持 反对

使用道具 举报

0

收听

1

听众

160

帖子

E粉新星

注册时间
2010-6-6
精华
0
 楼主| 发表于 2012-3-29 18:23:27 | 显示全部楼层
平面设计图2.JPG
我补充了一下:
                      1)卧室都做衣橱
                      2)飘窗做成书架,这样不占用儿童房空间
问题:客厅和餐厅的位置有分歧,本来是想按照第一套方案做的,后来考虑到餐厅离厨房太远,中间隔一个餐厅,现改成现在的方案,不知道哪一种合适?

回复 支持 反对

使用道具 举报

0

收听

1

听众

160

帖子

E粉新星

注册时间
2010-6-6
精华
0
 楼主| 发表于 2012-3-29 18:31:59 | 显示全部楼层
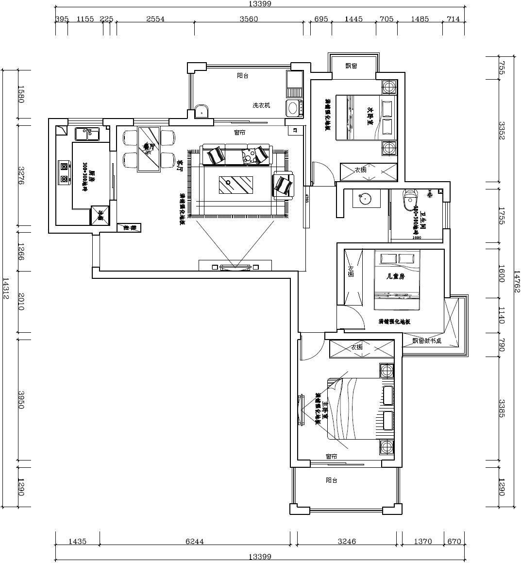
平面设计图1.JPG
这就是我的第一套方案,主要是客厅的餐厅的位置不一样
回复 支持 反对

使用道具 举报

0

收听

1

听众

160

帖子

E粉新星

注册时间
2010-6-6
精华
0
 楼主| 发表于 2012-3-29 18:37:41 | 显示全部楼层
锦致橱柜 发表于 2012-3-29 18:18
厨房我感觉第二种方案合理一些,客厅我个人认为第一种比较好一些,关键是电视墙要处理好,浴柜左边的墙建议 ...

浴室那扇墙砸掉,做成推拉式的移门
回复 支持 反对

使用道具 举报

9

收听

7

听众

1349

帖子

认证商家

注册时间
2011-11-6
精华
0
发表于 2012-3-29 19:19:58 | 显示全部楼层
jsf9411 发表于 2012-3-29 18:37
浴室那扇墙砸掉,做成推拉式的移门

做成开放式洗漱空间。
展厅地址:光彩国际家居博览中心一层61号
销售热线:8882250
客服热线:8882251
品鉴热线:13905569197   qq:2502490242
做适合中国人的厨房,您的满意是我们最高的荣誉[
回复 支持 反对

使用道具 举报

2

收听

24

听众

1951

帖子

E粉明星

注册时间
2010-8-8
精华
0
发表于 2012-3-29 21:08:59 | 显示全部楼层
未标题-3副本.jpg
回复 支持 反对

使用道具 举报

2

收听

24

听众

1951

帖子

E粉明星

注册时间
2010-8-8
精华
0
发表于 2012-3-29 21:17:57 | 显示全部楼层
未标题-3副本.jpg
回复 支持 反对

使用道具 举报

2

收听

24

听众

1951

帖子

E粉明星

注册时间
2010-8-8
精华
0
发表于 2012-3-29 21:32:49 | 显示全部楼层
本帖最后由 竞叫战士 于 2012-3-29 22:43 编辑

1、儿童房动区要尽可能宽大。

2、大多数家庭的厨房使用率高,进出厨房一定要便利。

3、客厅是用的,不仅仅是看的。尽可能可以多容纳客人。

4、玄关除了解决换鞋,尽可能考虑有换外套的地方。否则入住以后,进窝后外套乱扔。
未标题-4副本.jpg
回复 支持 反对

使用道具 举报

0

收听

1

听众

160

帖子

E粉新星

注册时间
2010-6-6
精华
0
 楼主| 发表于 2012-3-30 02:02:23 | 显示全部楼层
楼上的设计图看了以后,给我一种全新的思维,觉得非常好。也指出了我需要修改的两方面内容:
1)客厅的布局。以前的平面图给我感觉太单调,显示不出层次感。
2)儿童房感觉是比较狭小
在此,非常感谢楼上的回复!
回复 支持 反对

使用道具 举报

0

收听

1

听众

160

帖子

E粉新星

注册时间
2010-6-6
精华
0
 楼主| 发表于 2012-3-30 02:03:05 | 显示全部楼层
锦致橱柜 发表于 2012-3-29 19:19
做成开放式洗漱空间。

这样冬天洗澡会不会感觉有点冷啊!
回复 支持 反对

使用道具 举报

0

收听

1

听众

160

帖子

E粉新星

注册时间
2010-6-6
精华
0
 楼主| 发表于 2012-3-30 02:04:35 | 显示全部楼层
竞叫战士 发表于 2012-3-29 21:32
1、儿童房动区要尽可能宽大。

2、大多数家庭的厨房使用率高,进出厨房一定要便利。

客厅的衣柜和展示柜有没有好的效果图啊?
回复 支持 反对

使用道具 举报

0

收听

1

听众

101

帖子

E粉新星

注册时间
2012-2-9
精华
0
QQ
发表于 2012-3-30 10:34:03 | 显示全部楼层
预祝楼主装修顺利
回复 支持 反对

使用道具 举报

头像被屏蔽

0

收听

0

听众

855

帖子

禁止访问

注册时间
2005-8-30
精华
17

发表于 2012-3-30 10:47:06 | 显示全部楼层
提示: 作者被禁止或删除 内容自动屏蔽
回复 支持 反对

使用道具 举报

0

收听

6

听众

587

帖子

E粉明星

注册时间
2010-9-20
精华
1
QQ
发表于 2012-3-30 12:27:11 | 显示全部楼层
有时间可以带上您的初期平面图来我们公司坐坐哦!我们公司的设计水平会让您感觉耳目一新的哦!
勿加广告图,否则封号
回复 支持 反对

使用道具 举报

6

收听

2

听众

221

帖子

E粉新星

注册时间
2011-10-30
精华
0
发表于 2012-3-30 13:44:37 | 显示全部楼层
本帖最后由 liuyanmei 于 2012-3-30 13:49 编辑

    一看就知道您是香水百合三期的, 针对于您的2套方案个人都不是很喜欢,我倒是认为”竞叫战士“的方案可行性更高一些,但是建议您家的电视背景和沙发的位置变换一下,可能会更好一些。
回复 支持 反对

使用道具 举报

0

收听

1

听众

160

帖子

E粉新星

注册时间
2010-6-6
精华
0
 楼主| 发表于 2012-3-30 14:36:18 | 显示全部楼层
是香水百合三期的房子,多谢有这么多人来关心!
回复 支持 反对

使用道具 举报

0

收听

1

听众

160

帖子

E粉新星

注册时间
2010-6-6
精华
0
 楼主| 发表于 2012-3-30 14:42:24 | 显示全部楼层
liuyanmei 发表于 2012-3-30 13:44
一看就知道您是香水百合三期的, 针对于您的2套方案个人都不是很喜欢,我倒是认为”竞叫战士“的方案可 ...

你所说的位置对调(背景墙和沙发)也就是我发的第一张方案的图片
回复 支持 反对

使用道具 举报

0

收听

1

听众

127

帖子

E粉新星

注册时间
2010-4-13
精华
0
QQ
发表于 2012-3-30 15:26:01 | 显示全部楼层
几种都不好,都感觉有点挤
回复 支持 反对

使用道具 举报

0

收听

1

听众

127

帖子

E粉新星

注册时间
2010-4-13
精华
0
QQ
发表于 2012-3-30 15:26:24 | 显示全部楼层
实话实说,别怪
回复 支持 反对

使用道具 举报

0

收听

1

听众

160

帖子

E粉新星

注册时间
2010-6-6
精华
0
 楼主| 发表于 2012-3-30 16:21:41 | 显示全部楼层
panz 发表于 2012-3-30 15:26
几种都不好,都感觉有点挤

没关系,有没有好的方案,发一下我看看
回复 支持 反对

使用道具 举报

0

收听

1

听众

160

帖子

E粉新星

注册时间
2010-6-6
精华
0
 楼主| 发表于 2012-3-30 16:23:52 | 显示全部楼层
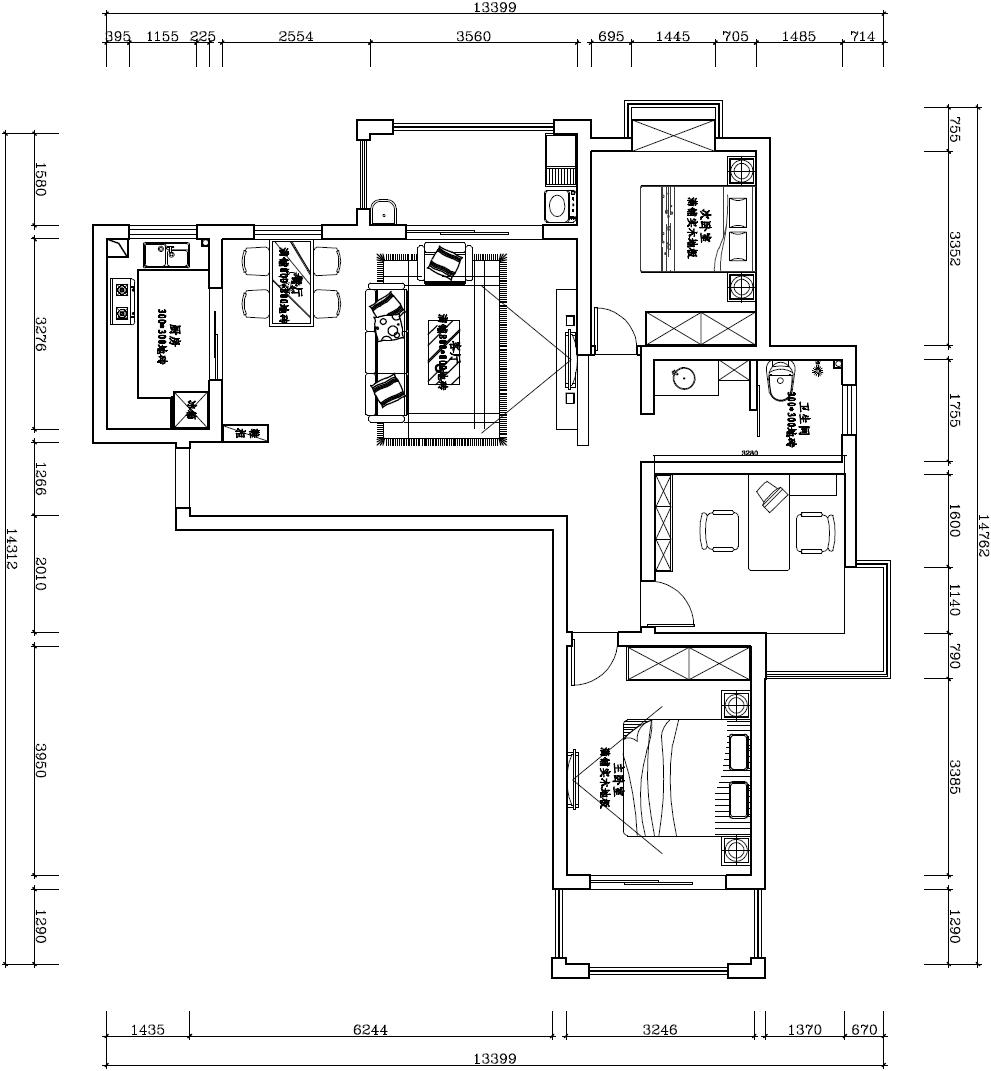
平面设计图3.JPG
我改了一下,这样空间节省下来了
回复 支持 反对

使用道具 举报

6

收听

2

听众

221

帖子

E粉新星

注册时间
2011-10-30
精华
0
发表于 2012-3-30 16:48:27 | 显示全部楼层
jsf9411 发表于 2012-3-30 14:42
你所说的位置对调(背景墙和沙发)也就是我发的第一张方案的图片

       你的中间没有墙?墙是这儿最大的亮点,有好多种。最好不要做移门。做移门就显的不伦不类了。个人意见,不要见怪!
我是合肥大维装饰安庆分公司的,你要找装饰公司的话可以到我们公司看看,我们公司不管设计和施工都挺好的,我们现在也有在香水百合三期装修的,可以带你到工地看看!要是准备自己装的话,有什么可以帮上您忙的,可以打我电话。



公司地址:湖心北路1号报业大厦13层
联系方式:5325418    18609666687(刘岩梅)
回复 支持 反对

使用道具 举报

2

收听

8

听众

3219

帖子

E粉明星

注册时间
2009-10-21
精华
0
QQ
发表于 2012-3-30 16:52:44 | 显示全部楼层
爱家装饰欢迎您
这个户型我们正在施工,可以去实地考察
,加我QQ。详谈
低 调 奢 华,品 味 生 活
爱家装饰地址:吾悦广场B-1801-1802室
爱家装饰电话: 15856537787微信
回复 支持 反对

使用道具 举报

您需要登录后才可以回帖 登录 | 注册

本版积分规则

联系合作|手机版|手机APP|Archiver|

GMT+8, 2025-12-10 20:42 Powered by Discuz! X3.4

安庆E网生活网站 © 2001-2013 Comsenz Inc. ( 皖ICP备05012696号 )

QQ

安庆瑞易文化 地址:华茂1958-C7栋 联系电话:0556-5306667 联系邮箱:17779721@qq.com 互联网违法和不良信息举报电话和邮箱:0556-5306667 17779721@qq.com

皖公网安备 34080002000101号

    
快速回复 返回顶部 返回列表