安庆E网

搜索
楼主: jsf9411

[施工探讨] 帮我看看平面设计图哪里需要改的?

  [复制链接]

0

收听

3

听众

403

帖子

E粉明星

注册时间
2009-3-9
精华
0
发表于 2012-3-30 17:09:21 | 显示全部楼层
觉得竞叫的设计比较好,就是把那鞋柜取消,并到那个衣柜一起,进门处就不会显得拥挤了,呵呵

点评

谢谢  发表于 2012-3-30 19:25
回复 支持 反对

使用道具 举报

0

收听

1

听众

160

帖子

E粉新星

注册时间
2010-6-6
精华
0
 楼主| 发表于 2012-3-30 17:57:58 | 显示全部楼层
尚品本色木门 发表于 2012-3-30 17:12
集思广益,就是不一样哦!

集思广益,能从中学到很多知识,在此感谢上面的楼主回复!
回复 支持 反对

使用道具 举报

0

收听

1

听众

160

帖子

E粉新星

注册时间
2010-6-6
精华
0
 楼主| 发表于 2012-3-30 18:10:51 | 显示全部楼层
1_120214222515_5[1].jpg
这是我第四张平面设计图的效果图,给人感觉太直统了
回复 支持 反对

使用道具 举报

0

收听

1

听众

160

帖子

E粉新星

注册时间
2010-6-6
精华
0
 楼主| 发表于 2012-3-30 18:12:41 | 显示全部楼层
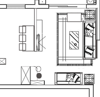
这是“竞叫战士”平面设计图的效果图,有层次感,不过感觉很拥挤,呵呵
回复 支持 反对

使用道具 举报

0

收听

1

听众

160

帖子

E粉新星

注册时间
2010-6-6
精华
0
 楼主| 发表于 2012-3-30 18:13:34 | 显示全部楼层
jsf9411 发表于 2012-3-30 18:12
这是“竞叫战士”平面设计图的效果图,有层次感,不过感觉很拥挤,呵呵

回复 支持 反对

使用道具 举报

0

收听

1

听众

160

帖子

E粉新星

注册时间
2010-6-6
精华
0
 楼主| 发表于 2012-3-30 18:14:37 | 显示全部楼层
jsf9411 发表于 2012-3-30 18:13

1_120214222515_2[1].jpg
回复 支持 反对

使用道具 举报

2

收听

24

听众

1951

帖子

E粉明星

注册时间
2010-8-8
精华
0
发表于 2012-3-30 18:32:28 | 显示全部楼层
我来解释一下:

原户型(我猜测北阳台),三卧室间有4.5M的走廊,而入户到我是走廊一共6M多点,很容易潜意识形成更长地走廊。


我的第一思维就是必须把不需要的走廊破掉。

楼主可以到你的邻居走走瞧瞧,凡是潜意识或主动在餐客厅形成走廊的,都是劣等伪设计。这等设计屎应

该去做工兵挖地道!
回复 支持 反对

使用道具 举报

0

收听

1

听众

160

帖子

E粉新星

注册时间
2010-6-6
精华
0
 楼主| 发表于 2012-3-30 18:35:24 | 显示全部楼层
竞叫战士 发表于 2012-3-30 18:32
我来解释一下:

原户型(我猜测北阳台),三卧室间有4.5M的走廊,而入户到我是走廊一共6M多点,很容易潜 ...

从我个人的角度来讲,还是觉得你的设计符合我的思想,在此表示感谢!
回复 支持 反对

使用道具 举报

2

收听

24

听众

1951

帖子

E粉明星

注册时间
2010-8-8
精华
0
发表于 2012-3-30 18:36:13 | 显示全部楼层
接下来关于拥挤的问题:

一个4.5X6≈27平方的餐客厅(包括玄关),只能是紧凑的,肯定不够宽松。

全通透容易形成通道走廊,不妥。
回复 支持 反对

使用道具 举报

0

收听

1

听众

160

帖子

E粉新星

注册时间
2010-6-6
精华
0
 楼主| 发表于 2012-3-30 18:38:30 | 显示全部楼层
竞叫战士 发表于 2012-3-29 21:32
1、儿童房动区要尽可能宽大。

2、大多数家庭的厨房使用率高,进出厨房一定要便利。

在进门的地方,有一个衣橱和展示柜,这样会不会对大型家具和床的搬进有影响呢?所以我改了一下,做一个靠墙的酒柜。

点评

可以,如图  发表于 2012-3-30 18:53
回复 支持 反对

使用道具 举报

2

收听

24

听众

1951

帖子

E粉明星

注册时间
2010-8-8
精华
0
发表于 2012-3-30 18:39:57 | 显示全部楼层
关于餐厅:

平时过日子,餐台就按我的图纸放,6个人以内宽松得很。(此时的餐台灯安置在电视背景墙的背面,可以翻转的)

逢年过节、来人,就把餐台放置餐厅的中央。(餐厅顶部物理中心安置主光源)
回复 支持 反对

使用道具 举报

2

收听

24

听众

1951

帖子

E粉明星

注册时间
2010-8-8
精华
0
发表于 2012-3-30 18:42:33 | 显示全部楼层
客厅:

电视墙的材料和色调一定要和展示柜呼应、衔接起来,使电视背景墙与展示柜断中有连,争取一气通贯。
回复 支持 反对

使用道具 举报

0

收听

1

听众

160

帖子

E粉新星

注册时间
2010-6-6
精华
0
 楼主| 发表于 2012-3-30 18:48:52 | 显示全部楼层
楼上的分析很到位,可以借鉴。
但是,我在装修方面并不是很在行,专业方面的知识很欠缺,所以还请楼上最好多配一些图片说明一下,谢谢
回复 支持 反对

使用道具 举报

0

收听

1

听众

160

帖子

E粉新星

注册时间
2010-6-6
精华
0
 楼主| 发表于 2012-3-30 18:49:49 | 显示全部楼层
楼上的分析很到位,可以借鉴。
但是,我在装修方面并不是很在行,专业方面的知识很欠缺,所以还请楼上最好多配一些图片说明一下,谢谢
回复 支持 反对

使用道具 举报

2

收听

24

听众

1951

帖子

E粉明星

注册时间
2010-8-8
精华
0
发表于 2012-3-30 18:53:00 | 显示全部楼层
jsf9411 发表于 2012-3-30 18:38
在进门的地方,有一个衣橱和展示柜,这样会不会对大型家具和床的搬进有影响呢?所以我改了一下,做一个靠 ...

未标题-4副本.jpg
可以设计成吧台。
回复 支持 反对

使用道具 举报

2

收听

24

听众

1951

帖子

E粉明星

注册时间
2010-8-8
精华
0
发表于 2012-3-30 19:02:35 | 显示全部楼层
吧台边的沙发
回复 支持 反对

使用道具 举报

0

收听

1

听众

160

帖子

E粉新星

注册时间
2010-6-6
精华
0
 楼主| 发表于 2012-3-30 19:10:17 | 显示全部楼层
竞叫战士 发表于 2012-3-30 19:02
吧台边的沙发

看不到,显示不出来
回复 支持 反对

使用道具 举报

2

收听

24

听众

1951

帖子

E粉明星

注册时间
2010-8-8
精华
0
发表于 2012-3-30 19:20:03 | 显示全部楼层
本帖最后由 竞叫战士 于 2012-3-30 19:22 编辑

至于沙发放到哪边,我也认真思考过。

1、你是愿意坐在沙发上看厕所呢,还是看餐厅?

2、坐在沙发上是青龙动好,还是白虎星发动好?

实际上答案是唯一的。
回复 支持 反对

使用道具 举报

0

收听

1

听众

160

帖子

E粉新星

注册时间
2010-6-6
精华
0
 楼主| 发表于 2012-3-30 19:32:23 | 显示全部楼层
竞叫战士 发表于 2012-3-30 19:20
至于沙发放到哪边,我也认真思考过。

1、你是愿意坐在沙发上看厕所呢,还是看餐厅?

恕我愚昧,对沙发的摆放确实不知,再说对风水也不是很了解,望赐教!

点评

按照我的图放置沙发  发表于 2012-3-30 19:36
回复 支持 反对

使用道具 举报

0

收听

1

听众

160

帖子

E粉新星

注册时间
2010-6-6
精华
0
 楼主| 发表于 2012-3-30 19:44:05 | 显示全部楼层
竞叫战士 发表于 2012-3-30 19:02
吧台边的沙发

能不能再把这张图片发一下
回复 支持 反对

使用道具 举报

0

收听

5

听众

841

帖子

未认证商家

注册时间
2011-10-14
精华
0
QQ
发表于 2012-3-31 13:42:02 | 显示全部楼层
个人认为阳台那块没有好好利用 有点浪费了哈
更多有品位的家庭选择雷拓
一店:南翔博览中心二楼 8882133
二店:百年家居一期 5848688[/
回复 支持 反对

使用道具 举报

0

收听

1

听众

160

帖子

E粉新星

注册时间
2010-6-6
精华
0
 楼主| 发表于 2012-3-31 17:34:43 | 显示全部楼层
客厅外面的阳台摆了洗衣机和洗衣池,卧室外面的阳台暂时还没有想好做什么
回复 支持 反对

使用道具 举报

0

收听

1

听众

160

帖子

E粉新星

注册时间
2010-6-6
精华
0
 楼主| 发表于 2012-4-5 12:14:43 | 显示全部楼层
德国雷拓滑门 发表于 2012-3-31 13:42
个人认为阳台那块没有好好利用 有点浪费了哈

如果要充分利用阳台,请问有什么好的建议啊?
回复 支持 反对

使用道具 举报

0

收听

2

听众

2877

帖子

未认证商家

注册时间
2010-7-27
精华
0
QQ
发表于 2012-4-10 09:33:51 | 显示全部楼层
QQ 27284524 电话 13033191509
地址 安庆西湖绿洲城 影竹圆 1栋5单元401
回复 支持 反对

使用道具 举报

0

收听

1

听众

160

帖子

E粉新星

注册时间
2010-6-6
精华
0
 楼主| 发表于 2012-4-10 20:58:37 | 显示全部楼层
装修倒计时
回复 支持 反对

使用道具 举报

您需要登录后才可以回帖 登录 | 注册

本版积分规则

联系合作|手机版|手机APP|Archiver|

GMT+8, 2025-12-10 22:56 Powered by Discuz! X3.4

安庆E网生活网站 © 2001-2013 Comsenz Inc. ( 皖ICP备05012696号 )

QQ

安庆瑞易文化 地址:华茂1958-C7栋 联系电话:0556-5306667 联系邮箱:17779721@qq.com 互联网违法和不良信息举报电话和邮箱:0556-5306667 17779721@qq.com

皖公网安备 34080002000101号

    
快速回复 返回顶部 返回列表