安庆E网

搜索
123
返回列表 发新帖
楼主: jsf9411

[施工探讨] 帮我看看平面设计图哪里需要改的?

  [复制链接]
头像被屏蔽

0

收听

1

听众

1259

帖子

禁止访问

注册时间
2011-3-29
精华
0
发表于 2012-4-11 09:59:03 | 显示全部楼层
提示: 作者被禁止或删除 内容自动屏蔽
签名被屏蔽
回复 支持 反对

使用道具 举报

1

收听

2

听众

86

帖子

E粉新星

注册时间
2010-6-27
精华
0
QQ
发表于 2012-4-11 16:45:46 | 显示全部楼层
您家这个户型我们有做好的方案和效果图,您可以来看看,
地址:湖心北路19号(香樟里大门北50米)QQ:1099397497 Tel:18297707747
回复 支持 反对

使用道具 举报

0

收听

1

听众

160

帖子

E粉新星

注册时间
2010-6-6
精华
0
 楼主| 发表于 2012-4-11 20:21:48 | 显示全部楼层

RE: 帮我看看平面设计图哪里需要改的?(装修倒计时)

不懂、 发表于 2012-4-11 16:45
您家这个户型我们有做好的方案和效果图,您可以来看看,

谢谢你的回复,我不在安庆!
回复 支持 反对

使用道具 举报

1

收听

3

听众

1557

帖子

E粉明星

注册时间
2005-5-11
精华
1

发表于 2012-4-11 22:21:48 | 显示全部楼层
不懂、 发表于 2012-4-11 16:45
您家这个户型我们有做好的方案和效果图,您可以来看看,

有好方案,先拿出来看看啊,没有保密的必要吧
宠辱不惊,静观堂前花开花落;去留无意,漫看天边云卷云舒。[img]http://attachments.goapk.com/album/2012
回复 支持 反对

使用道具 举报

0

收听

2

听众

1931

帖子

E粉明星

注册时间
2006-3-14
精华
5

传说中的小马哥

QQ
发表于 2012-4-12 09:24:25 | 显示全部楼层
几套方案都不合理,很多细节地方都没注意,儿童房采光全没考虑!
回复 支持 反对

使用道具 举报

头像被屏蔽

0

收听

1

听众

1259

帖子

禁止访问

注册时间
2011-3-29
精华
0
发表于 2012-4-12 10:57:54 | 显示全部楼层
提示: 作者被禁止或删除 内容自动屏蔽
签名被屏蔽
回复 支持 反对

使用道具 举报

1

收听

2

听众

86

帖子

E粉新星

注册时间
2010-6-27
精华
0
QQ
发表于 2012-4-12 12:42:03 | 显示全部楼层

点评

回帖之前要读帖,特别是33楼的帖子。  发表于 2012-4-12 21:03
地址:湖心北路19号(香樟里大门北50米)QQ:1099397497 Tel:18297707747
回复 支持 反对

使用道具 举报

1

收听

4

听众

605

帖子

未认证商家

注册时间
2010-8-26
精华
0
QQ
发表于 2012-4-12 12:55:44 | 显示全部楼层
您好,我公司在香水三期已经做了四户,如果有时间希望能带您实地参观一下,您的户型我公司也有。如果您这边方便的话,希望能来我们公司看看,见面详谈!  我叫小孙,来的时候可以打我电话,我们去接您,15856521292
标准工程     一就不同
地址:棋盘山路与沿江路交叉口1-2号门面  
电话:5570733
回复 支持 反对

使用道具 举报

0

收听

1

听众

160

帖子

E粉新星

注册时间
2010-6-6
精华
0
 楼主| 发表于 2012-4-12 15:31:52 | 显示全部楼层

RE: 帮我看看平面设计图哪里需要改的?(装修倒计时)

不懂、 发表于 2012-4-12 12:42

你的方案我已看了,谢谢你的回复!
不好意思,装修公司已经定下来了,像我这样的户型就是客厅和餐厅变化比较大!
回复 支持 反对

使用道具 举报

1

收听

2

听众

86

帖子

E粉新星

注册时间
2010-6-27
精华
0
QQ
发表于 2012-4-12 17:22:16 | 显示全部楼层
没关系,那祝您开工大吉哦。如果有什么工程和设计上的问题的话也可以联系我哦。
地址:湖心北路19号(香樟里大门北50米)QQ:1099397497 Tel:18297707747
回复 支持 反对

使用道具 举报

0

收听

1

听众

160

帖子

E粉新星

注册时间
2010-6-6
精华
0
 楼主| 发表于 2012-4-14 09:57:27 | 显示全部楼层

RE: 帮我看看平面设计图哪里需要改的?(装修倒计时)

不懂、 发表于 2012-4-12 12:42

是谁屏蔽了你的图啊?
回复 支持 反对

使用道具 举报

头像被屏蔽

0

收听

1

听众

1259

帖子

禁止访问

注册时间
2011-3-29
精华
0
发表于 2012-4-14 10:19:56 | 显示全部楼层
提示: 作者被禁止或删除 内容自动屏蔽
签名被屏蔽
回复 支持 反对

使用道具 举报

0

收听

1

听众

1209

帖子

未认证商家

注册时间
2010-3-4
精华
0
QQ
发表于 2012-4-17 09:02:54 | 显示全部楼层
做工好,价格低,本公司拒绝工程外包。如有需要请联系:18655660988
设计重实用、装修看做工。天宝新苑、金桂学府、碧桂园施工中,欢迎参观!光彩三期东四街88号1-3楼。0556-5175138,18655660988,13855674632
回复 支持 反对

使用道具 举报

0

收听

1

听众

160

帖子

E粉新星

注册时间
2010-6-6
精华
0
 楼主| 发表于 2012-4-17 11:47:27 | 显示全部楼层
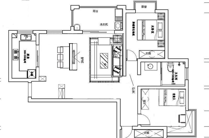
在这里非常感谢“竞叫战士”和“不懂”两位大侠的回帖,我参照了你们的思路,稍微修改了一下,最终方案如图所示 方案2.JPG
回复 支持 反对

使用道具 举报

头像被屏蔽

0

收听

1

听众

47

帖子

禁止访问

注册时间
2010-9-30
精华
0
发表于 2012-4-17 17:38:36 | 显示全部楼层
提示: 作者被禁止或删除 内容自动屏蔽
回复 支持 反对

使用道具 举报

0

收听

1

听众

160

帖子

E粉新星

注册时间
2010-6-6
精华
0
 楼主| 发表于 2012-4-17 22:12:40 | 显示全部楼层

RE: 帮我看看平面设计图哪里需要改的?(装修倒计时)

安庆多尔贝家居 发表于 2012-4-17 17:38
户型感觉不算太好,要说装修方案嘛我觉得还是原始的方案合理一些,这样厨房,餐厅,客厅都很好用,我认为鞋 ...

进门的对面是做了一个玄关啊,请看图!
回复 支持 反对

使用道具 举报

2

收听

8

听众

3219

帖子

E粉明星

注册时间
2009-10-21
精华
0
QQ
发表于 2012-4-21 13:42:50 | 显示全部楼层
低 调 奢 华,品 味 生 活
爱家装饰地址:吾悦广场B-1801-1802室
爱家装饰电话: 15856537787微信
回复 支持 反对

使用道具 举报

2

收听

24

听众

1951

帖子

E粉明星

注册时间
2010-8-8
精华
0
发表于 2012-4-22 09:00:21 | 显示全部楼层
未标题-1.jpg
回复 支持 反对

使用道具 举报

2

收听

24

听众

1951

帖子

E粉明星

注册时间
2010-8-8
精华
0
发表于 2012-4-22 09:02:22 | 显示全部楼层
本帖最后由 竞叫战士 于 2012-4-22 09:14 编辑

这样大气,成本低
未标题-1.jpg
回复 支持 反对

使用道具 举报

0

收听

1

听众

160

帖子

E粉新星

注册时间
2010-6-6
精华
0
 楼主| 发表于 2012-4-22 15:34:30 | 显示全部楼层

RE: 帮我看看平面设计图哪里需要改的?(装修进行中)

竞叫战士 发表于 2012-4-22 09:02
这样大气,成本低

方案已经定了,我还是觉得我最终定下来的方案适合于我。
另外,装修已于4月22日上午0938时开工的,后面会有相关的报道,谢谢跟踪回帖
回复 支持 反对

使用道具 举报

您需要登录后才可以回帖 登录 | 注册

本版积分规则

联系合作|手机版|手机APP|Archiver|

GMT+8, 2025-12-10 22:56 Powered by Discuz! X3.4

安庆E网生活网站 © 2001-2013 Comsenz Inc. ( 皖ICP备05012696号 )

QQ

安庆瑞易文化 地址:华茂1958-C7栋 联系电话:0556-5306667 联系邮箱:17779721@qq.com 互联网违法和不良信息举报电话和邮箱:0556-5306667 17779721@qq.com

皖公网安备 34080002000101号

    
快速回复 返回顶部 返回列表